當前位置:潛水推流器 > XF旋轉式格柵機

XF旋轉式格柵機廠家為鏈傳動耙齒回轉式機械格柵除污機,適用于污水和雨水泵站及污水處理廠, 攔截和去除污水中較大雜質、漂浮物和懸浮物,減輕后續工序負荷。
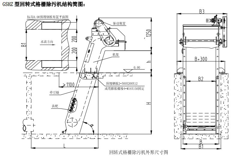
構造及工作過程
供應格柵除污機平板格柵清污機是由若干耙齒裝配在回轉鏈上,隨著鏈條做回轉運動,將柵前攔截的污物帶出水面,并隨著鏈條的回轉運動將污物自卸到格柵后的輸送機中,液體則通過耙齒間形成的柵隙流過去, 整個工作狀態連續進行。
XF旋轉式格柵機廠家表示方式
機械格柵注意事項
是由一種獨特的耙齒廠裝配成一組回轉格柵鏈。在電機減速器的驅動下,耙齒鏈進行逆水流方向回轉運動。
耙齒鏈運轉到設備的上部時,由于槽輪和彎軌的導向,使每組耙齒之間產生相對自清運動,絕大部分固體物質靠重力落下。另一部分則依靠清掃器的反向運動把粘在耙齒上的雜物清掃干凈。
按水流方向耙齒鏈類同于格柵,在耙齒鏈軸上裝配的耙齒間隙可以根據使用條件進行選擇。當耙齒把流體中的固態懸浮物分離后可以保證水流暢通流過。整個工作過程是連續的,也可以是間歇的。


廠家供應格柵除污機平板格柵清污機主要產品特點
(1)結構緊湊,整機性能好,通水面積大,運行穩定可靠。
(2)操作簡單,清污效果好,效率高,壽命長。
(3)維修方便,柵體水下部分無固定螺絲。
(4)格柵回轉循環、撈渣、除污工作實行全自動控制。
(5)具有自動、點動、急停、切斷等控制功能,便利運行與維護保養。
(6)每臺清污機配置一套控制箱(戶內),電氣元件全部采用國內外產品,并可根據用戶要求預留PLC接口。
(7)具有機械、電氣雙重過載保護裝置。
A.機械保護措施:在傳動鏈輪中設有安全銷,能在過載情況下瞬間切斷安全銷,預防傳動件損壞。
B.電氣保護:在電氣設計中設有過流保護,保證在設備出現故障后能有效地保護電機不被燒壞。
(8)清污機的鏈條采用不銹鋼材料,鏈條的小轉輪也為不銹鋼材料;鏈條水下導向部分采用滑道方式,無須加潤滑油,從而使鏈條不易被污物卡住。
(9)驅動裝置設有防護罩,既滿足室外安裝的要求,又便于檢查和維修;
(10)在鏈條和耙齒之間設置鏈板,與設備的堵水邊角鋼形成封閉結構,使齒耙鏈成為封閉式鏈條,從而阻止了垃圾進入機內運行軌道,防止鏈條梗死等故障;
(11)當齒耙鏈運行到設備后部時,齒耙間發生相對位移,進行自清理運動,柵渣落入柵渣小車中。因而不會發生堵塞現象,故日常維修的工作量很少且格柵底部不會有污物堆積死角。
(12)設備進行安裝時,與溝壁接觸的兩側用橡膠密封帶密封,并用鋼壓條固定;底部耙齒鏈前設有一平板及橡膠密封帶,達到設備與土建密封,防止水中雜質流漏。
(13)在設備上部兩側設有檢修孔板,即使由于大的雜物使耙齒及其它部件損壞,也只要在工作平臺更換損壞的耙齒和零件,勿需水下維修,不影響過水流量。
6.材質
格柵框架 碳鋼防腐
耙齒 不銹鋼(SS304)
傳動部件 不銹鋼(SS304)
7. 驗收標準
設計、制造、試驗及驗收均執行建設部行業標準CJ/T3848-1995〔平面格柵除污機〕。
8.其他技術說明
8.1出廠檢測與驗收
每臺設備經檢查試驗合格,并附有產品合格證、使用維護說明書、外購件的質保書和合格證。
設備出廠前,在廠內進行整機空載試運轉,檢驗項目應包括:外觀檢查、各種材料的檢驗、齒耙額定載荷的檢測、鏈條各鏈板與銷軸的連接檢查、機座的焊接和緊固件連接的檢查、噪聲的檢測、以及其他項目的檢測。
8.2現場安裝與驗收
8.2.1設備到現場后,我方的技術代表到工作現場負責安裝。
8.2.2在全部設備安裝后,我方負責進行運行調試和現場測試,并進行工作現場培訓。調試后,清污機空轉試驗不少于4小時。測試內容及測試結果滿足標書的各項技術要求,并得到買方的認可。測試記錄交予買方。如測試結果不符合要求,我方負責免費更換。現場測量工具由我方自備。
8.3銘牌與標志
銘牌固定在明顯的位置。銘牌內容如下:
設備名稱、設備型號、主要技術參數、電機功率、電壓等級、出廠日期、出廠編號等。
銘牌裝在設備合適、顯著的位置上。
8.4 運輸、包裝
我方保證運輸過程中設備均有牢固的包裝,防腐層不會損壞,確保設備安全到達交貨地點。
8.5耗材和專用工具
我方提供設備中必要的隨機耗材、專用工具,并按質保期內的用量列出耗材的名稱、數量,并按此內容供貨