當前位置:潛水推流器 > 回轉式細格柵除污機

產品簡介:
回轉式細格柵除污機(格柵除污機)是一種可以連續自動清除流體中各種形狀的雜物,以固液分離為目的裝置,它可以作為一種專用設備廣泛地應用于城市污水處理、自來水行業、電廠進水口,同時也可以作為紡織、食品加工、造紙、皮革等行業生產工藝中必不可少的專用設備,是目前我國進的固液分離設備,回轉式機械格柵又稱格柵除污機。
用途:
回轉式細格柵除污機用于城市污水處理廠、自來水廠、雨水泵站等進水渠,攔截水中的漂浮物,保證水泵和后續工序的正常運行。
GSHP型回轉耙式格柵除污機產品特點:
1、由于除污機的柵條放置于齒耙牽引鏈的中間位置(其他機械格柵置于牽引鏈之下),改變了齒耙在清撈過程中的運動方向(與其它格柵相反),避免把硬物帶入底部把齒耙及牽引鏈卡死;
2、在減速機輸出軸端的鏈輪盤上安裝了過載安全保護裝置,以避免因意外原因過載而損壞設備;
3、由于格柵機回轉鏈配帶多個除污齒耙,使得除污效率高,清污徹底。
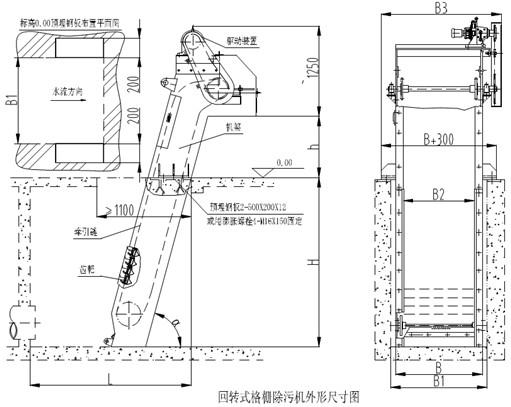
GSHP回轉耙式格柵結構及工作原理:
主要由驅動變速裝置、機架、主軸、柵條、托渣板、齒耙及牽引鏈組成。在電動機的驅動下,通過減速機減速后,帶動鏈輪與鏈條運動,固定在回轉鏈條上除污齒耙鏈條在柵后運動到底部, 經過導輪后翻轉到柵前迎水面的位置繼續運動插入固定柵條的間隙中上行,把柵前攔截的污物提升帶出水面,并隨著鏈條的運動到出渣口處自動翻轉,污物自卸到格柵后的輸送機或渣桶中,完成除污過程,液體則通過柵條的柵隙流過, 整個工作狀態連續循環進行。
外形安裝工藝
主要技術參數